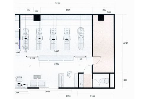
店舗デザイン 9A様 改装
- ■坪数:30坪
- ■工事費用:700万円
- ■立地:宮城県仙台市
■コメント:
老舗サロンであり、比較的高単価・質の高いサービスを心掛けておられるサロンとの事で間接照明や・色合い・素材で高級感を持たせるよう配慮致しました。何度もイメージCGを提出したことで、オーナー、マネージャー幹部の方のご理解を頂きました。特に照明は事務所用の照明などを使われていたので、見栄えが激変し的確な照度で作業しやすいとの声を頂きました。
9A様がリニューアルオープンするまで
9A様が改装するまでの工事・納品・店舗デザインの様子を、ブログにて紹介しています。
実際の施工の具体的な流れがよく分かりますので、是非ご参考にして頂ければと思います。
- 2013年11月19日の記事「改装の為の移転作業!!」
- 2013年12月03日の記事「工事進捗情報!!」
- 2013年12月09日の記事「内装・家具製作・器具・機材の納品」
- 2013年12月18日の記事「図面・CGパース作成」
極上中古品・格安高品質の自社製品をフル活用し、低予算とハイクオリティーを両立!
タカラベルモント・大広製作所などの高額ブランド製品でも、中古品は格段にリーズナブル!ほとんど新品同然の極上中古器具・中古機器も取り揃えています。
サロンマーケットでは中古品も安心の保証付き。中古器具も徹底したメンテナンスとオーバーホール(部品単位まで分解して清掃・再組み立てを行い、新品時の性能状態に戻す作業)を施しており、安心してご使用いただけます。
また、性能・デザイン性で国内メーカー品に見劣りしない高品質の自社製品も、中間業者を排することで激安価格で提供しております。
これらの器具や機器を賢く活用することで、店舗デザインのクオリティーを追求しながら、開業時の設備投資を大幅に削減する施策をご提案可能です!
今まで納品して参りましたオーナー様からは「長年使っているシャンプーイスとは思えない」など、中古品の品質に感激されたお言葉を多数頂いています。弊社の中古品オーバーホール・納品・張替の実例は以下のブログ記事をご覧下さい。
格安高品質がご好評頂いている自社製品の店舗への取り付け・設置の事例もブログでご紹介しています。低価格品と思えないハイセンスなデザイン性をお確かめ下さい。
弊社の販売サイトにて「中古品などの活用で開店費用を120万円以上削減する方法」をご案内しております。開業資金などにご不安のあるオーナー様・美容師様は、こちらも是非ご覧下さい。
※セット椅子・美容椅子、リアシャンプー・バックシャンプー、セット面・鏡・ミラー、シャンプーキャビネット、シャンプーボール、シャンプー椅子、遠赤外線促進器・プロセッサー、ワゴン、スツール・カットイス、消毒器・タオルスチーマーなど必要機材を格安で取り揃え、サロンのオープンに必要な設備投資を大幅に削減するご提案です。
サロンマーケットの中古品が安心して選ばれる「5つの理由」
「中古品は安くても汚れているし、故障が心配…」とご不安を感じられているお客様も多いかと思います。弊社から中古品を購入するメリットは、ただ「価格が安い」というだけではありません。多くのオーナー様や美容師様に安心して選ばれ厚く支持されている、他の販売店には真似の出来ない「5つの理由」がございます。
- 新品同様の極上中古品も品揃え豊富
- 高い技術を誇るスタッフによる徹底したメンテナンス
- 厳正な動作テストをクリアした商品のみを販売
- プロの運送屋さんもお墨付きの完璧梱包
- 商品の設置・取付・カスタマイズまで完璧フォロー
安心して選ばれる「5つの理由」の詳細こちら(弊社販売サイト)
サロンマーケットの品質はショールームでもお確かめいただけます
■開業・改装・器具導入・経営等について随時ご相談を承ります
サロン様の疑問やお悩みについても、随時無料で親身になってご相談に乗らせていただきますので、お気軽にお問合せ下さい。実際に商品をご覧になりたいお客様は、是非、ショールームへお越し下さい。スタッフが不在の場合がございますので、ご来店前にメールかお電話でご連絡頂くと幸いです。
・メールでのお問合せ/365日24時間受付
・お電話対応時間/10:00~19:30(日曜日・祝日定休)
当サイトのメニュー一覧
- 開業をお考えの理美容師様へ 「廃業率0%」の確かな実績!業歴15年以上のプロ集団が独立開業を全面サポート致します。
- 開業までの流れと手順 美容室・理容室の開業までの流れを、開業成功へのアドバイスを交えご説明致します。
- 店舗内装・外装工事の実績 弊社が積み上げて来た新規出店・改装リニューアルの店舗施工実績を工事費用毎にご紹介。
- 開業支援の実績とご満足のお声 美容室・理容室専門の開業支援サービスの実績とオーナー様のご満足の声をご紹介。
- 店舗デザイン・CGレイアウト作成 格安の費用にてご要望を実現し、ハイセンス・ハイクオリティな店舗空間を設計します。
- 資金調達・融資のご相談 金融機関からの開業資金調達や融資、事業計画書に関するご相談を承ります。
- グラフィック・WEBデザイン 看板・印刷物・ホームページなど集客支援ツールの制作を承ります。
- 不動産情報・物件検索 テナント選び(居抜き物件・スケルトン物件)のノウハウなど、お役立ち情報も発信!
- よくあるご質問 工事費用の相場など、美容室・理容室の開業に関するよくあるご質問にお答えします。
- 会社案内・企業理念 工務店や理美容器具販売店の一般的業務の他、機材の取り付け等の作業も喜んで承ります。
- 無料お見積り・ご相談フォーム 開店・改装にはいくらの費用が必要か?などサロン様のお悩みに無料でご相談を承ります。
- 理美容機器・器具の高価買取 中古器具や不要な機器の売却のご相談・無料査定。タカラベルモント・大広など大歓迎!














東京ショールーム





